gardoBEMAßUNG
Produktinformationen "gardoBEMAßUNG"
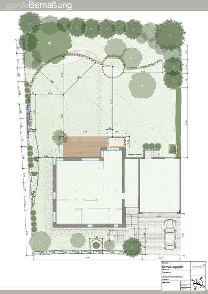
Der Bemaßungsplan ist das A und O für die fachgerechte Umsetzung einer Gartenplanung.
Inhaltsübersicht
- Angaben aller Längenmaße [Länge, Breite, Radien aller Teilflächen]
- Angaben aller Flächeninhalte [Größe aller Teilflächen]
- Darstellung im Bemaßungsplan [im Maßstab 1:100]
- optional Versand ausgedruckter Planungsunterlagen [im entsprechenden DIN-Format]
Möchten Sie Ihre Gartenplanung selbst oder mithilfe einer Gartenbaufirma umsetzen, so benötigen Sie sämtliche Längen- und Flächenangaben für die einzelnen Teilbereiche im Garten. Die gardoBEMAßUNG beinhaltet all diese Zahlen übersichtlich in einem separaten Plan dargestellt. Bei der Genehmigung bzw. Umsetzung Ihrer Gartengestaltung müssen die Maße nicht zeitaufwendig im Plan nachgemessen werden, sondern sind sofort ablesbar. So können Kostenangebote durch eine Gartenbaufirma wesentlich schneller und effektiver erstellt und Zeit auf der Baustelle eingespart werden.
Da die gardoBEMAßUNG ein Zusatzplan für eine vorherige Gartengestaltung ist, kann er nur in Verbindung mit den Planungspaketen gardoIDEE+KONZEPT oder gardoKOMPLETT gebucht werden.
Die Zusatzpläne sind auch im Nachhinein bestellbar. Nachdem Sie sich in den Shop eingeloggt haben, finden Sie diese unter "gardoZUSATZPLÄNE".
Die gesamte Planungsabwicklung erfolgt über das GARDOMAT-Planungsportal. Sämtliche Unterlagen können Sie direkt dort hochladen und kommentieren. Alle Aufgabenschritte finden Sie übersichtlich im Planungsportal wieder. Nach erfolgreicher Bestellung erhalten Sie per Mail Ihren persönlichen Zugangslink.
Wir sind für Sie da!

Bei offenen Fragen und individuellen Planungsanfragen, schreiben Sie und gern: GARDOMAT kontaktieren
Oder rufen Sie uns direkt an, unter: 0351 - 27 93 932
Wir freuen uns auf Ihre Anfrage!
Anmelden