Zum Hauptinhalt springen Zur Suche springen Zur Hauptnavigation springen

Garten im rustikal-natürlichen Stil

Von:
Gegebenheiten

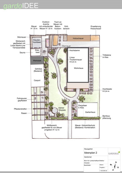
Das zu planende Grundstück ist ein Bestandsgarten mit verschiedenen bestehenden Elementen, der mit neuen Nutzungen kombiniert und umgestaltet werden soll.

Wünsche

Es wurde gewünscht ein Gartenhaus mit Holzterrasse, ein Holzschauer, eine Faßsauna und eine Outdoor-/ Solardusche neu zu integrieren. Die Verbindungen zwischen den einzelnen Elementen und das neu anlegen von Pflanzflächen ist Inhalt der Planung. Insgesamt sollte ein natürlicher Gartenstil mit organischen Formen vorherrschen. 

Gartengestaltung

Das Gartenhaus mit Holzterrasse ist in fast allen Ideen vegetativ von allen Seiten umsäumt. Die verschiedenen Pflanzflächen werden auf der gegenüberliegenden Seite in passender Art und Weise wieder aufgegriffen. Somit wird zum einen der Eingang in den Garten attraktiver gestaltet und zum anderen entsteht ein ruhiger und erholsamer Bereich um das Gartenhaus, durch die vegetative Abschirmung. Mithilfe von Trittsteinen und Pflasterflächen werden vordergründig die verschiedenen Gartenelemente verbunden, jedoch ergeben sich dadurch Räume, welche durch Pflanzflächen charakterisiert werden und sich gegebenenfalls an die Wege angliedern.
Nicht nur die Verbindungswege zwischen Eingang und Wohnhaus und anderen Elementen wurde umgestaltet, sondern ein spezieller Fokus liegt auf der Einfahrt. In den drei unterschiedlichen Ideen wurde mit Rasenstreifen in Fahrspuren und Pflasterflächen experimentiert. Somit entsteht ein neues Bild und durch die angrenzende Pflanzfläche aus Sträuchern oder Stauden ist dennoch ein 'Blick ins Grüne' gegeben.
Nördlich gelegen im Grundstück, in der Nähe der Sauna entsteht ein Sitzplatz, dessen Besonderheit ein Tisch an einer Motiv-Mauer ist. Als Motiv für die Mauer wurde eine Strandlandschaft mit Leuchtturm vorgeschlagen. Des Weiteren wird der Sitzbereich je nach Idee durch einen Grillplatz oder einem Hochbeet mit Stauden oder Gräsern vervollständigt.

Produktgalerie überspringen

Zugehörige Produkte

gardoIDEE

ab 599,00 €*

  • Kundenwunschanalyse
  • zwei handgezeichnete Ideenpläne
  • Detaillierung der Kundenwünsche
  • CAD-Konzeptplan aus zwei Ideenplänen
  • Angabe aller Material- & Produktvorschläge
  • Angabe aller standortspezifischer Pflanzen
  • Gardomat-Planungbroschüre
gardoIDEE besteht aus zwei unterschiedlichen, auf Ihre Bedürfnisse abgestimmten Ideenplänen. Jeder Plan enthält eine Vielzahl an individuellen Gestaltungsvorschlägen.InhaltsübersichtKundenwunschanalyse [Kundenwunschformular, Telefongespräch]zwei handgezeichnete Ideenpläne [auf Basis der Kundenwunschanalyse]Ideen, Ideen, Ideen - gardoIDEE ist genau das Richtige für die umfassende Ideenfindung. In zwei handgezeichneten Plänen werden Ihnen verschiedene, auf Ihre Wünsche abgestimmte Planungsvorschläge präsentiert. Die Pläne zeigen die mögliche Strukturierung Ihres Gartens und die verschiedenen Gartengestaltungselemente in unterschiedlicher Kombination und Proportion. Sie finden die Bezeichnungen der gezeichneten Elemente (Weg, Mauer, Carport, etc.) in den Plänen.Wir weisen ausdrücklich darauf hin, dass die Planung vorbehaltlich einer Bauvoranfrage bzw. Baugenehmigung erstellt wird. Die Abstimmungspflicht liegt beim Bauherren.Folgende Unterlagen benötigen wir von Ihnen:ausgefülltes Kundenwunschformular [Erhalt nach Bestellung per Mail]aussagekräftige Fotos des Grundstücksmaßstabsgerechter Grundriss- bzw. Lageplanggf. weitere relevante Grundlagenpläne [Höhenplan, Bebauungsplan etc.]Die gesamte Planungsabwicklung erfolgt über das GARDOMAT-Planungsportal. Sämtliche Unterlagen können Sie direkt dort hochladen und kommentieren. Alle Aufgabenschritte finden Sie übersichtlich im Planungsportal wieder. Nach erfolgreicher Bestellung erhalten Sie per Mail Ihren persönlichen Zugangslink.Unsere Empfehlung:Um ein zufriedenstellendes Gesamtergebnis zu erhalten, welches alle relevanten Aspekte in einem Plan vereint, empfehlen wir Ihnen ein CAD-Konzept im Maßstab 1:100 [gardoIDEE+KONZEPT] erstellen zu lassen. Aus gardoIDEE analysieren wir gemeinsam mit Ihnen die besten Gestaltungsansätze und halten diese in einem CAD-Konzept fest. Dieser Plan entspricht daher nahezu 100 % Ihren Vorstellungen. Zu gardoIDEE+KONZEPT können Sie sämtliche standort- und pflegespezifischen Pflanzenangaben sowie sämtliche Materialangaben hinzubestellen. Sie sehen die genauen Bezeichnungen im Plan und erhalten zusätzlich die Gardomat-Planungsbroschüre, in der alle Pflanzen und Materialien in Bild und Text dargestellt sind.Aufbauend auf gardoIDEE besteht auch im Nachhinein die Möglichkeit gardoKONZEPT mit den passenden Pflanzen- (gardoPFLANZEN) und Materialangaben (gardoMATERIAL) hinzuzubuchen. Sobald Sie sich in den Shop eingeloggt haben, finden Sie in der Navigationsleiste gardoZUSATZPLÄNE. Hier können Sie gardoKONZEPT hinzubestellen.Vor-Ort-Service möglich (je nach Verfügbarkeit):Für die Unterstützung bei der Bestandsaufnahme bieten wir einen Vor-Ort-Service an. Unsere Gartenbau-Partner kommen auf Wunsch zu Ihnen vor Ort und nehmen Ihren Bestand auf. Auch ein Aufmaß ist möglich, inklusive einer Höhenaufnahme.Hier finden Sie nähere Informationen zum Vor-Ort-Service.Wir sind für Sie da!Bei offenen Fragen und individuellen Planungsanfragen, schreiben Sie und gern: GARDOMAT kontaktierenOder rufen Sie uns direkt an, unter: 0351 - 27 93 932Wir freuen uns auf Ihre Anfrage!