Zum Hauptinhalt springen Zur Suche springen Zur Hauptnavigation springen

Klassischer Zengarten mit modernen Elementen

Von:

Gegebenheiten

Das Grundstück befindet sich mitten in einer Kleinstadt. Dementsprechend ist der Sichtschutz für eine intime Atmosphäre entscheidend. Wichtig ist zudem das Einbeziehen der bestehenden Elemente und Gehölze.

Wünsche

Die Besitzer wünschten sich einen Ruhepol und Rückzugsort vom stressigen Alltag. Die Formensprache sollte organisch geschwungen sein. Eine Kombination aus japanischen & modernen Gartenstil sollte ebenso wie das Thema Wasser Berücksichtigung finden.  

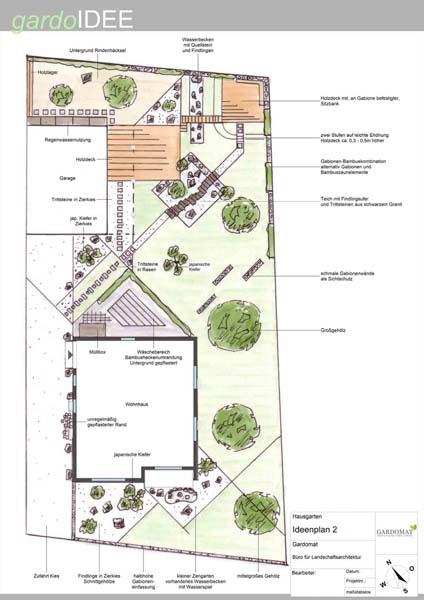
Gartengestaltung

Bei der Gestaltung des Gartens wurden die klassischen Schranken des japanischen Stils durchbrochen. Es ist eine Mischung aus japanischem Zengarten, einem Wassergarten und modernen Elementen entstanden, welche die Bereiche sinnvoll und funktional verbindet. 

Sehr außergewöhnlich ist die Gestaltung der Zufahrt mit einem stabilisierten und damit auf Dauer befahrbaren Kiesbelag. Es wurde durchgehend darauf geachtet den natürlichen Charakter zu wahren.

Der Vorgarten ist zum Großteil als klassischer Zengarten, mit Kies, Findlingen und kleinen Pflanzungen, angelegt. Die 45°-Ausrichtung sorgt für einen sehr modernen und individuellen Charakter. Das Wasserbecken wurde als Kiesbecken in die neue Gartengestaltung integriert.

Der Übergang zwischen Zufahrt und Hauptgarten erfolgt über ebenfalls 45° ausgerichtete Trittsteine, wobei der hintere Gartenteil bewusst nicht sichtbar ist. So wird die nötige Intimität und zusätzlich Spannung erzeugt.
Der Hauptgarten wird insbesondere durch die "Seenlandschaft" und die "Felsenlandschaft" geprägt. Diese - in der Ecke platzierte Wasserwand aus Natursteinblöcken - rahmt den Garten ein und ist zugleich ein sehr schöner und beruhigender Blickpunkt. Die beiden Holzdecks reichen jeweils über den "Seerand" hinaus und machen den Garten somit umso mehr erlebbar.
Bei der Planung wurde sehr sensibel auf die bestehenden Gegebenheiten Rücksicht genommen und auf eine sinnvolle Verbindung geachtet. Mit Hilfe des Beleuchtungskonzeptes werden durchweg japanische Steinlampen integriert.

Produktgalerie überspringen

Zugehörige Produkte

Tipp
gardoKOMPLETT

ab 799,00 €*

  • Kundenwunschanalyse
  • zwei handgezeichnete Ideenpläne
  • Detaillierung der Kundenwünsche
  • CAD-Konzeptplan aus zwei Ideenplänen
  • Angabe aller Material- & Produktvorschläge
  • Angabe aller standortspezifischer Pflanzen
  • Gardomat-Planungsbroschüre
gardoKOMPLETT ist das effektive Rundumpaket! Sie erhalten gardoIDEE+KONZEPT, gardoPFLANZEN und gardoMATERIAL in einem Komplettpaket.Inhaltsübersichtinkl. gardoIDEE+KONZEPTKundenwunschanalyse [Kundenwunschformular, Telefongespräch]zwei handgezeichnete Ideenpläne [auf Basis der Kundenwunschanalyse]Detaillierung der Kundenwünsche [Telefongespräch, Auswertung der Ideen]CAD-Konzeptplan aus zwei Ideenplänen [im Maßstab 1:100]optional Versand ausgedruckter Planungsunterlagen [im entsprechenden DIN-Format]inkl. gardoMATERIALAngabe aller Material- & Produktvorschläge: Belagsflächen, Mauern, Zäune etc.Gardomat-Planungbroschüre: detaillierte Materialbeschreibung in Bild und Textinkl. gardoPFLANZENAngabe aller standortspezifischer Pflanzen: Bäume, Sträucher, Gräser, Bodendecker... [exkl. Stauden]Gardomat-Planungbroschüre: Pflanzennamen in Deutsch & Botanisch, Blütezeiten, Mengen im PlangardoKOMPLETT umfasst zunächst zwei unterschiedliche, auf Ihre Bedürfnisse abgestimmte Ideenpläne [gardoIDEE]. Diese handgezeichneten Pläne zeigen die mögliche Strukturierung Ihres Gartens und die verschiedenen Gartengestaltungselemente in unterschiedlicher Kombination und Proportion. Aus diesen Plänen werden die jeweils besten Gestaltungsvorschläge gefiltert und in einem CAD-Konzeptplan festgehalten. Dieser Plan entspricht daher nahezu 100 % Ihren Vorstellungen.Das Beste bei gardoKOMPLETT: gardoPFLANZEN und gardoMATERIAL sind mit inbegriffen. In der dazugehörigen GARDOMAT-Planungsbroschüre sind daher sämtliche Pflanzen- und Materialangaben mit anschaulichen Bildern und spezifischen Beschreibungen aufgeführt.Wir weisen ausdrücklich darauf hin, dass die Planung vorbehaltlich einer Bauvoranfrage bzw. Baugenehmigung erstellt wird. Die Abstimmungspflicht liegt beim Bauherren.Folgende Unterlagen benötigen wir von Ihnen:ausgefülltes Kundenwunschformular [Erhalt nach Bestellung per Mail]aussagekräftige Fotos des Grundstücksmaßstabsgerechter Grundriss- bzw. Lageplanggf. weitere relevante Grundlagenpläne [Höhenplan, Bebauungsplan etc.]Die gesamte Planungsabwicklung erfolgt über das GARDOMAT-Planungsportal. Sämtliche Unterlagen können Sie direkt dort hochladen und kommentieren. Alle Aufgabenschritte finden Sie übersichtlich im Planungsportal wieder. Nach erfolgreicher Bestellung erhalten Sie per Mail Ihren persönlichen Zugangslink.Folgende Zusatzpläne werden empfohlen:gardoBEMAßUNG - Der Bemaßungsplan ist das A und O für eine später ggf. notwendige Detaillierung der Planung vor Ort durch einen ausführenden Fachbetrieb. Die Maße müssen nicht zeitaufwendig im Plan nachgemessen werden, sondern sind sofort ablesbar. Er beinhaltet sämtliche planbezogene Längen- und Flächenangaben (keine Mengenangaben). Damit ist eine weitere wichtige Grundlage für die Detaillierung der Planung sowie Genehmigung vor Ort und für die Preiskalkulation Ihres Gartens geschaffen.gardoBEWÄSSERUNG - Durch eine professionelle Gartengestaltung lassen sich die verschiedenen Bereiche Ihres Gartens optimal mit Wasser versorgen. Eine nachhaltige und kostensparende Anwendung ist garantiert! Gardomat bietet Ihnen eine auf die Bedürfnisse Ihrer Pflanzen ausgerichtete Bewässerungsplanung , damit Ihr Garten auch nach langer Zeit lebendig und einfach schön aussieht.gardoBELEUCHTUNG - Ganz nach Ihren Vorlieben wird ein exklusiver Beleuchtungsplan erstellt. Gardomat berücksichtigt ein umfassendes Repertoire an Leuchten und integriert diese wunschgemäß in Ihre Gartengestaltung. Sie erhalten einen ganz persönlichen Beleuchtungsplan Ihres Gartens mit dessen Hilfe Ihr Garten auch bei Dunkelheit Sicherheit ausstrahlt und in Szene gesetzt wird!gardo3D - Damit Sie eine bessere Vorstellung und ein gutes Raumgefühl für Ihren neuen Garten bekommen, bieten wir Ihnen die Möglichkeit von 3D-Visualisierungen an. Gerade bei einem Grundstück mit Höhenversprüngen lässt sich mit Hilfe der 3D-Ansichten die neue Strukturierung Ihres Gartens besser zeigen und nachvollziehen. Je nach Planungspaket werden bei der 3D-Visualisierung nicht nur die baulichen Elemente sondern auch die raumprägenden Pflanzen wie Gehölze, Sträucher oder Heckenelemente dargestellt.Die Zusatzpläne sind auch im Nachhinein bestellbar. Nachdem Sie sich in den Shop eingeloggt haben, finden Sie diese unter "gardoZUSATZPLÄNE".Vor-Ort-Service möglich (je nach Verfügbarkeit):Für die Unterstützung bei der Bestandsaufnahme bieten wir einen Vor-Ort-Service an. Unsere Gartenbau-Partner kommen auf Wunsch zu Ihnen vor Ort und nehmen Ihren Bestand auf. Auch ein Aufmaß ist möglich, inklusive einer Höhenaufnahme.Hier finden Sie nähere Informationen zum Vor-Ort-Service.Wir sind für Sie da!Bei offenen Fragen und individuellen Planungsanfragen, schreiben Sie und gern: GARDOMAT kontaktierenOder rufen Sie uns direkt an, unter: 0351 - 27 93 932Wir freuen uns auf Ihre Anfrage!