Zum Hauptinhalt springen Zur Suche springen Zur Hauptnavigation springen

Moderne Ferienwohnanlage

Von:
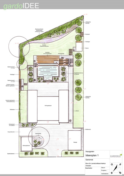
Gegebenheiten 

Auf dem 1.700 m² großen Grundstück befindet sich ein großes Wohnhaus, sowie ein Nebengebäude und eine Garage mit drei Stellplätzen. Die Besonderheit dieser Anlage ist, dass es sich um eine Ferienwohnungsanlage handelt. Es bestehen bereits eine große Terrasse und ein Pool, welche sehr prominent im Garten platziert wurden. 

Wünsche

Die neue Gartengestaltung soll die vorhandenen Elemente aufgreifen und in ein harmonisches Gesamtbild einfügen. Die Gartennutzung dient der Erholung und Entspannung, sollte jedoch auch für Gartenfeste geeignet sein.

Gartengestaltung

Die moderne Gestaltung spiegelt sich auch in den klaren, geradlinigen Formen und der großzügigen Anordnung wider. Des Weiteren wird die moderne Gestaltung durch moderne Pflastersteine und vieler Kiesbeete gefördert. In den Kiesbeeten finden einige Ziergräser und Lavendel Ihren Platz. Als Hingucker und Sichtschutz dienen die drei in Reihe gepflanzten Kupferfelsenbirnen. Die Herbstfärbung und die kleinen Früchten setzen kleine Farbnuancen.
In der Nähe der großen Terrasse erreicht man über Trittsteine im Plattenformat die Outdoor-Küche. Durch die Nähe steht einem geselligen Abend nichts im Wege. In Bezug auf den Pool wurde eine Dusche miteingeplant und außerdem beinhaltet das Anwesen eine Outdoor-Sauna. Diese ist ebenfalls über Trittsteine in Kies zu erreichen.

Produktgalerie überspringen

Zugehörige Produkte

gardoBELEUCHTUNG

ab 129,00 €*

  • Erstellung Beleuchtungsplan
  • Erarbeitung Leitungsschema
  • Vorschlag standortspezifischer Leuchten
  • optional Zusenden separater Beleuchtungsplan
Die Gardomat-Beleuchtungsplanung ist ein besonderer Höhepunkt für Ihren Garten. Ganz nach Ihren Vorlieben wird ein exklusiver Beleuchtungsplan erstellt.InhaltsübersichtPositionierung der Beleuchtungsbauteile [Leuchten, Schalter, Steckdosen etc.]Vorschlag der verschiedenen, standortspezifischen LeuchtenDarstellung im Beleuchtungsplan [im Maßstab 1:100]optional Versand ausgedruckter Planungsunterlagen [im entsprechenden DIN-Format]Gardomat berücksichtigt ein umfassendes Repertoire an Außenleuchten und integriert diese wunschgemäß in Ihre Gartengestaltung. Sie erhalten einen separaten Beleuchtungsplan Ihres Gartens, mit dessen Hilfe Ihr Garten auch bei Dunkelheit Sicherheit ausstrahlt und in Szene gesetzt wird. Im Plan finden Sie die vorgeschlagenen Standorte und die Art der Außenleuchten. Außerdem erhalten Sie die Gardomat-Planungsbroschüre, in der alle Leuchten mit Kurzbeschreibungen, technischen Spezifikationen und repräsentativen Bildern aufgeführt sind.1. Beleuchtungsplanung mit Gartengestaltung:Wählen Sie gardoIDEE+KONZEPT oder gardoKOMPLETT als Gestaltungspaket und buchen Sie einfach gardoBELEUCHTUNG hinzu. 2. Beleuchtungsplanung ohne Gartengestaltung:Bei einer Beleuchtungsplanung ohne Gartenplanung benötigen wir von Ihnen einen maßstabsgerechten Grundstückssplan oder eine maßstabsgerechte Handskizze (1:100 oder 1:200) mit folgenden Angaben:Darstellung der befestigten Flächen [Wege, Terrasse, Sitzplätze etc.]Darstellung der bestehenden Gebäude [Wohnhaus, Gartenhaus, Garage etc.]Darstellung der bestehenden Pflanzungen [Gehölze, Sträucher, Staudenbeete etc.]bereits bestehende Vorstellungen zur Beleuchtung [Art, Position etc.]Die gesamte Planungsabwicklung erfolgt über das GARDOMAT-Planungsportal. Sämtliche Unterlagen können Sie direkt dort hochladen und kommentieren. Alle Aufgabenschritte finden Sie übersichtlich im Planungsportal wieder. Nach erfolgreicher Bestellung erhalten Sie per Mail Ihren persönlichen Zugangslink.Wir sind für Sie da!Bei offenen Fragen und individuellen Planungsanfragen, schreiben Sie und gern: GARDOMAT kontaktierenOder rufen Sie uns direkt an, unter: 0351 - 27 93 932Wir freuen uns auf Ihre Anfrage!
Tipp
gardoKOMPLETT

ab 799,00 €*

  • Kundenwunschanalyse
  • zwei handgezeichnete Ideenpläne
  • Detaillierung der Kundenwünsche
  • CAD-Konzeptplan aus zwei Ideenplänen
  • Angabe aller Material- & Produktvorschläge
  • Angabe aller standortspezifischer Pflanzen
  • Gardomat-Planungsbroschüre
gardoKOMPLETT ist das effektive Rundumpaket! Sie erhalten gardoIDEE+KONZEPT, gardoPFLANZEN und gardoMATERIAL in einem Komplettpaket.Inhaltsübersichtinkl. gardoIDEE+KONZEPTKundenwunschanalyse [Kundenwunschformular, Telefongespräch]zwei handgezeichnete Ideenpläne [auf Basis der Kundenwunschanalyse]Detaillierung der Kundenwünsche [Telefongespräch, Auswertung der Ideen]CAD-Konzeptplan aus zwei Ideenplänen [im Maßstab 1:100]optional Versand ausgedruckter Planungsunterlagen [im entsprechenden DIN-Format]inkl. gardoMATERIALAngabe aller Material- & Produktvorschläge: Belagsflächen, Mauern, Zäune etc.Gardomat-Planungbroschüre: detaillierte Materialbeschreibung in Bild und Textinkl. gardoPFLANZENAngabe aller standortspezifischer Pflanzen: Bäume, Sträucher, Gräser, Bodendecker... [exkl. Stauden]Gardomat-Planungbroschüre: Pflanzennamen in Deutsch & Botanisch, Blütezeiten, Mengen im PlangardoKOMPLETT umfasst zunächst zwei unterschiedliche, auf Ihre Bedürfnisse abgestimmte Ideenpläne [gardoIDEE]. Diese handgezeichneten Pläne zeigen die mögliche Strukturierung Ihres Gartens und die verschiedenen Gartengestaltungselemente in unterschiedlicher Kombination und Proportion. Aus diesen Plänen werden die jeweils besten Gestaltungsvorschläge gefiltert und in einem CAD-Konzeptplan festgehalten. Dieser Plan entspricht daher nahezu 100 % Ihren Vorstellungen.Das Beste bei gardoKOMPLETT: gardoPFLANZEN und gardoMATERIAL sind mit inbegriffen. In der dazugehörigen GARDOMAT-Planungsbroschüre sind daher sämtliche Pflanzen- und Materialangaben mit anschaulichen Bildern und spezifischen Beschreibungen aufgeführt.Wir weisen ausdrücklich darauf hin, dass die Planung vorbehaltlich einer Bauvoranfrage bzw. Baugenehmigung erstellt wird. Die Abstimmungspflicht liegt beim Bauherren.Folgende Unterlagen benötigen wir von Ihnen:ausgefülltes Kundenwunschformular [Erhalt nach Bestellung per Mail]aussagekräftige Fotos des Grundstücksmaßstabsgerechter Grundriss- bzw. Lageplanggf. weitere relevante Grundlagenpläne [Höhenplan, Bebauungsplan etc.]Die gesamte Planungsabwicklung erfolgt über das GARDOMAT-Planungsportal. Sämtliche Unterlagen können Sie direkt dort hochladen und kommentieren. Alle Aufgabenschritte finden Sie übersichtlich im Planungsportal wieder. Nach erfolgreicher Bestellung erhalten Sie per Mail Ihren persönlichen Zugangslink.Folgende Zusatzpläne werden empfohlen:gardoBEMAßUNG - Der Bemaßungsplan ist das A und O für eine später ggf. notwendige Detaillierung der Planung vor Ort durch einen ausführenden Fachbetrieb. Die Maße müssen nicht zeitaufwendig im Plan nachgemessen werden, sondern sind sofort ablesbar. Er beinhaltet sämtliche planbezogene Längen- und Flächenangaben (keine Mengenangaben). Damit ist eine weitere wichtige Grundlage für die Detaillierung der Planung sowie Genehmigung vor Ort und für die Preiskalkulation Ihres Gartens geschaffen.gardoBEWÄSSERUNG - Durch eine professionelle Gartengestaltung lassen sich die verschiedenen Bereiche Ihres Gartens optimal mit Wasser versorgen. Eine nachhaltige und kostensparende Anwendung ist garantiert! Gardomat bietet Ihnen eine auf die Bedürfnisse Ihrer Pflanzen ausgerichtete Bewässerungsplanung , damit Ihr Garten auch nach langer Zeit lebendig und einfach schön aussieht.gardoBELEUCHTUNG - Ganz nach Ihren Vorlieben wird ein exklusiver Beleuchtungsplan erstellt. Gardomat berücksichtigt ein umfassendes Repertoire an Leuchten und integriert diese wunschgemäß in Ihre Gartengestaltung. Sie erhalten einen ganz persönlichen Beleuchtungsplan Ihres Gartens mit dessen Hilfe Ihr Garten auch bei Dunkelheit Sicherheit ausstrahlt und in Szene gesetzt wird!gardo3D - Damit Sie eine bessere Vorstellung und ein gutes Raumgefühl für Ihren neuen Garten bekommen, bieten wir Ihnen die Möglichkeit von 3D-Visualisierungen an. Gerade bei einem Grundstück mit Höhenversprüngen lässt sich mit Hilfe der 3D-Ansichten die neue Strukturierung Ihres Gartens besser zeigen und nachvollziehen. Je nach Planungspaket werden bei der 3D-Visualisierung nicht nur die baulichen Elemente sondern auch die raumprägenden Pflanzen wie Gehölze, Sträucher oder Heckenelemente dargestellt.Die Zusatzpläne sind auch im Nachhinein bestellbar. Nachdem Sie sich in den Shop eingeloggt haben, finden Sie diese unter "gardoZUSATZPLÄNE".Vor-Ort-Service möglich (je nach Verfügbarkeit):Für die Unterstützung bei der Bestandsaufnahme bieten wir einen Vor-Ort-Service an. Unsere Gartenbau-Partner kommen auf Wunsch zu Ihnen vor Ort und nehmen Ihren Bestand auf. Auch ein Aufmaß ist möglich, inklusive einer Höhenaufnahme.Hier finden Sie nähere Informationen zum Vor-Ort-Service.Wir sind für Sie da!Bei offenen Fragen und individuellen Planungsanfragen, schreiben Sie und gern: GARDOMAT kontaktierenOder rufen Sie uns direkt an, unter: 0351 - 27 93 932Wir freuen uns auf Ihre Anfrage!
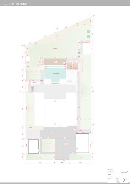
gardoBEMAßUNG

ab 149,00 €*

  • Erstellung Bemaßungsplan
  • Bemaßung aller relevanten Längen
  • Angabe aller Flächengrößen im Bemaßungsplan
  • optional Zusenden separater Bemaßungsplan
Der Bemaßungsplan ist das A und O für die fachgerechte Umsetzung einer Gartenplanung.InhaltsübersichtAngaben aller Längenmaße [Länge, Breite, Radien aller Teilflächen]Angaben aller Flächeninhalte [Größe aller Teilflächen]Darstellung im Bemaßungsplan [im Maßstab 1:100]optional Versand ausgedruckter Planungsunterlagen [im entsprechenden DIN-Format]Möchten Sie Ihre Gartenplanung selbst oder mithilfe einer Gartenbaufirma umsetzen, so benötigen Sie sämtliche Längen- und Flächenangaben für die einzelnen Teilbereiche im Garten. Die gardoBEMAßUNG beinhaltet all diese Zahlen übersichtlich in einem separaten Plan dargestellt. Bei der Genehmigung bzw. Umsetzung Ihrer Gartengestaltung müssen die Maße nicht zeitaufwendig im Plan nachgemessen werden, sondern sind sofort ablesbar. So können Kostenangebote durch eine Gartenbaufirma wesentlich schneller und effektiver erstellt und Zeit auf der Baustelle eingespart werden.Da die gardoBEMAßUNG ein Zusatzplan für eine vorherige Gartengestaltung ist, kann er nur in Verbindung mit den Planungspaketen gardoIDEE+KONZEPT oder gardoKOMPLETT gebucht werden.Die Zusatzpläne sind auch im Nachhinein bestellbar. Nachdem Sie sich in den Shop eingeloggt haben, finden Sie diese unter "gardoZUSATZPLÄNE".Die gesamte Planungsabwicklung erfolgt über das GARDOMAT-Planungsportal. Sämtliche Unterlagen können Sie direkt dort hochladen und kommentieren. Alle Aufgabenschritte finden Sie übersichtlich im Planungsportal wieder. Nach erfolgreicher Bestellung erhalten Sie per Mail Ihren persönlichen Zugangslink.Wir sind für Sie da!Bei offenen Fragen und individuellen Planungsanfragen, schreiben Sie und gern: GARDOMAT kontaktierenOder rufen Sie uns direkt an, unter: 0351 - 27 93 932Wir freuen uns auf Ihre Anfrage!
gardoBEWÄSSERUNG

ab 199,00 €*

  • standortspezifische Bewässerungsplanung
  • Erarbeitung Leitungsverlauf
  • Aufstellung Anlagenbestandteile
  • optional Zusenden separater Bewässerungsplan
Eine professionelle Bewässerungsanlage versorgt Ihren Garten bestmöglich mit Wasser. Zudem ist sie sehr effektiv und spart daher vor allem langfristig bares Geld!InhaltsübersichtAusarbeitung des Leitungsverlaufs Positionierung der Bewässerungsbauteile [Regner, Tropfrohr, Ventilbox etc.]Darstellung im BewässerungsplanAuflistung aller notwendigen Anlagenbestandteileoptional Versand ausgedruckter Planungsunterlagen [im entsprechenden DIN-Format] Durch eine professionelle Gartengestaltung lassen sich die verschiedenen Bereiche Ihres Gartens optimal mit Wasser versorgen. Eine nachhaltige und kostensparende Anwendung ist garantiert! Außerdem werden Ihre Pflanzen spezifisch, je nach Wasserbedarf, versorgt und können somit ideal wachsen und gedeihen. Eine Bewässerungsanlage steht daher für einen blütenreichen und vitalen Garten.Gardomat bietet Ihnen eine auf die Bedürfnisse Ihrer Pflanzen ausgerichtete Bewässerungsplanung, damit Ihr Garten auch nach langer Zeit lebendig und einfach schön aussieht! Wir erstellen eine standortspezifische und individuelle Bewässerungsplanung.1. Bewässerungsplanung mit Gartengestaltung:Wählen Sie gardoIDEE+KONZEPT oder gardoKOMPLETT als Gestaltungspaket und buchen Sie einfach gardoBEWÄSSERUNG hinzu.2. Bewässerungsplanung ohne Gartengestaltung:Bei einer Bewässerungsplanung ohne vorheriger Gartenplanung benötigen wir von Ihnen einen maßstabsgerechten Grundstücksplan oder eine maßstabsgerechte Handskizze (vorzugsweise 1:100 oder 1:200) mit folgenden Angaben:Darstellung der zu bewässernden Flächen, ggf. einschließlich der PflanzenDarstellung der nicht zu bewässernden Elemente wie Haus, Terrasse, Wege etc.Position des Wasseranschlusses [Pumpe oder Wasserhahn]Position des Stromanschlusses [für die Steuerung der Anlage]Für die Erstellung der Bewässerungsplanung benötigen wir außerdem einige technische Angaben und Werte, die in unserem Bewässerungsformular abgefragt werden. Dieses ist nach Ihrer Bestellung in unserem Planungsportal für Sie hinterlegt.Die gesamte Planungsabwicklung erfolgt über das GARDOMAT-Planungsportal. Sämtliche Unterlagen können Sie direkt dort hochladen und kommentieren. Alle Aufgabenschritte finden Sie übersichtlich im Planungsportal wieder. Nach erfolgreicher Bestellung erhalten Sie per Mail Ihren persönlichen Zugangslink.Wir sind für Sie da!Bei offenen Fragen und individuellen Planungsanfragen, schreiben Sie und gern: GARDOMAT kontaktierenOder rufen Sie uns direkt an, unter: 0351 - 27 93 932Wir freuen uns auf Ihre Anfrage!