Zum Hauptinhalt springen Zur Suche springen Zur Hauptnavigation springen

Moderner Garten mit Koiteich

Von:

Gegebenheiten

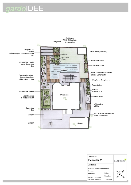
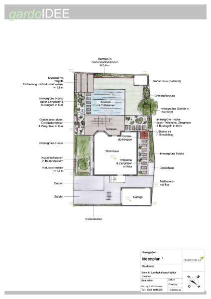
Der zu planende Garten befindet sich inmitten einer Stadt. Das ca. 400 qm große Grundstück soll neu gestaltet werden. Bestehende Hecken, die Terrasse, sowie der Teich werden entfernt um Platz für neue Ideen zu schaffen. Einzig das Gartenhaus und die Garage müssen integriert werden.

Wünsche

Die Besitzer wünschten sich einen modernen Garten mit gerader Linienführung. Das Thema Wasser stand besonders im Vordergrund, da ein Koiteich seinen Platz an der Terrasse finden sollte. Weitere Wünsche für den zukünftigen Garten waren ein Sitzplatz, ein Kräuterhochbeet, ein Carport, kleine Mauern und Sichtschutz für eine intime Atmosphäre. Bei der Pflanzenauswahl war eine immergrüne Bepflanzung mit einem geringen Pflegeaufwand favorisiert.

Gartengestaltung

Die Formensprache des gesamten Gartens ist linear und geradlinig. Holzstege verbinden die einzelnen Aufenthaltsbereiche. In der südlichen Grundstücksecke ist ein Sitzplatz mit einer Pergola entstanden. Gerahmt von Kiesbeeten mit Gräsern, immergrünen Gehölzen und Findlingen schafft die Bepflanzung eine gemütliche Atmosphäre. Eine Mauer aus Natursteinen bringt den gewünschten Sichtschutz. Die übrigen Grundstücksgrenzen sind mit einer Kombination Holzelementen und Natursteinmauern eingefasst. Der Koiteich umschließt die Terrasse L-förmig. Durch seine großzügige Ausdehnung schafft dieser Weite und hat eine beruhigende und entspannende Wirkung. Die Terrasse wurde mit großformatigen, quadratischen Platten belegt und bietet ausreichend Platz zum Verweilen. Das Kräuterhochbeet befindet sich an der westlichen Grundstücksgrenze. Eine Treppe führt hinunter zum Gartenhaus und der Garage.

Versetzte Sichtschutzwände aus Cortenstahl im Vorgarten, verhindern neugierige Blicke in den hinteren Garten. 

Produktgalerie überspringen

Zugehörige Produkte

gardoBELEUCHTUNG

ab 129,00 €*

  • Erstellung Beleuchtungsplan
  • Erarbeitung Leitungsschema
  • Vorschlag standortspezifischer Leuchten
  • optional Zusenden separater Beleuchtungsplan
Die Gardomat-Beleuchtungsplanung ist ein besonderer Höhepunkt für Ihren Garten. Ganz nach Ihren Vorlieben wird ein exklusiver Beleuchtungsplan erstellt.InhaltsübersichtPositionierung der Beleuchtungsbauteile [Leuchten, Schalter, Steckdosen etc.]Vorschlag der verschiedenen, standortspezifischen LeuchtenDarstellung im Beleuchtungsplan [im Maßstab 1:100]optional Versand ausgedruckter Planungsunterlagen [im entsprechenden DIN-Format]Gardomat berücksichtigt ein umfassendes Repertoire an Außenleuchten und integriert diese wunschgemäß in Ihre Gartengestaltung. Sie erhalten einen separaten Beleuchtungsplan Ihres Gartens, mit dessen Hilfe Ihr Garten auch bei Dunkelheit Sicherheit ausstrahlt und in Szene gesetzt wird. Im Plan finden Sie die vorgeschlagenen Standorte und die Art der Außenleuchten. Außerdem erhalten Sie die Gardomat-Planungsbroschüre, in der alle Leuchten mit Kurzbeschreibungen, technischen Spezifikationen und repräsentativen Bildern aufgeführt sind.1. Beleuchtungsplanung mit Gartengestaltung:Wählen Sie gardoIDEE+KONZEPT oder gardoKOMPLETT als Gestaltungspaket und buchen Sie einfach gardoBELEUCHTUNG hinzu. 2. Beleuchtungsplanung ohne Gartengestaltung:Bei einer Beleuchtungsplanung ohne Gartenplanung benötigen wir von Ihnen einen maßstabsgerechten Grundstückssplan oder eine maßstabsgerechte Handskizze (1:100 oder 1:200) mit folgenden Angaben:Darstellung der befestigten Flächen [Wege, Terrasse, Sitzplätze etc.]Darstellung der bestehenden Gebäude [Wohnhaus, Gartenhaus, Garage etc.]Darstellung der bestehenden Pflanzungen [Gehölze, Sträucher, Staudenbeete etc.]bereits bestehende Vorstellungen zur Beleuchtung [Art, Position etc.]Die gesamte Planungsabwicklung erfolgt über das GARDOMAT-Planungsportal. Sämtliche Unterlagen können Sie direkt dort hochladen und kommentieren. Alle Aufgabenschritte finden Sie übersichtlich im Planungsportal wieder. Nach erfolgreicher Bestellung erhalten Sie per Mail Ihren persönlichen Zugangslink.Wir sind für Sie da!Bei offenen Fragen und individuellen Planungsanfragen, schreiben Sie und gern: GARDOMAT kontaktierenOder rufen Sie uns direkt an, unter: 0351 - 27 93 932Wir freuen uns auf Ihre Anfrage!
Tipp
gardoKOMPLETT

ab 799,00 €*

  • Kundenwunschanalyse
  • zwei handgezeichnete Ideenpläne
  • Detaillierung der Kundenwünsche
  • CAD-Konzeptplan aus zwei Ideenplänen
  • Angabe aller Material- & Produktvorschläge
  • Angabe aller standortspezifischer Pflanzen
  • Gardomat-Planungsbroschüre
gardoKOMPLETT ist das effektive Rundumpaket! Sie erhalten gardoIDEE+KONZEPT, gardoPFLANZEN und gardoMATERIAL in einem Komplettpaket.Inhaltsübersichtinkl. gardoIDEE+KONZEPTKundenwunschanalyse [Kundenwunschformular, Telefongespräch]zwei handgezeichnete Ideenpläne [auf Basis der Kundenwunschanalyse]Detaillierung der Kundenwünsche [Telefongespräch, Auswertung der Ideen]CAD-Konzeptplan aus zwei Ideenplänen [im Maßstab 1:100]optional Versand ausgedruckter Planungsunterlagen [im entsprechenden DIN-Format]inkl. gardoMATERIALAngabe aller Material- & Produktvorschläge: Belagsflächen, Mauern, Zäune etc.Gardomat-Planungbroschüre: detaillierte Materialbeschreibung in Bild und Textinkl. gardoPFLANZENAngabe aller standortspezifischer Pflanzen: Bäume, Sträucher, Gräser, Bodendecker... [exkl. Stauden]Gardomat-Planungbroschüre: Pflanzennamen in Deutsch & Botanisch, Blütezeiten, Mengen im PlangardoKOMPLETT umfasst zunächst zwei unterschiedliche, auf Ihre Bedürfnisse abgestimmte Ideenpläne [gardoIDEE]. Diese handgezeichneten Pläne zeigen die mögliche Strukturierung Ihres Gartens und die verschiedenen Gartengestaltungselemente in unterschiedlicher Kombination und Proportion. Aus diesen Plänen werden die jeweils besten Gestaltungsvorschläge gefiltert und in einem CAD-Konzeptplan festgehalten. Dieser Plan entspricht daher nahezu 100 % Ihren Vorstellungen.Das Beste bei gardoKOMPLETT: gardoPFLANZEN und gardoMATERIAL sind mit inbegriffen. In der dazugehörigen GARDOMAT-Planungsbroschüre sind daher sämtliche Pflanzen- und Materialangaben mit anschaulichen Bildern und spezifischen Beschreibungen aufgeführt.Wir weisen ausdrücklich darauf hin, dass die Planung vorbehaltlich einer Bauvoranfrage bzw. Baugenehmigung erstellt wird. Die Abstimmungspflicht liegt beim Bauherren.Folgende Unterlagen benötigen wir von Ihnen:ausgefülltes Kundenwunschformular [Erhalt nach Bestellung per Mail]aussagekräftige Fotos des Grundstücksmaßstabsgerechter Grundriss- bzw. Lageplanggf. weitere relevante Grundlagenpläne [Höhenplan, Bebauungsplan etc.]Die gesamte Planungsabwicklung erfolgt über das GARDOMAT-Planungsportal. Sämtliche Unterlagen können Sie direkt dort hochladen und kommentieren. Alle Aufgabenschritte finden Sie übersichtlich im Planungsportal wieder. Nach erfolgreicher Bestellung erhalten Sie per Mail Ihren persönlichen Zugangslink.Folgende Zusatzpläne werden empfohlen:gardoBEMAßUNG - Der Bemaßungsplan ist das A und O für eine später ggf. notwendige Detaillierung der Planung vor Ort durch einen ausführenden Fachbetrieb. Die Maße müssen nicht zeitaufwendig im Plan nachgemessen werden, sondern sind sofort ablesbar. Er beinhaltet sämtliche planbezogene Längen- und Flächenangaben (keine Mengenangaben). Damit ist eine weitere wichtige Grundlage für die Detaillierung der Planung sowie Genehmigung vor Ort und für die Preiskalkulation Ihres Gartens geschaffen.gardoBEWÄSSERUNG - Durch eine professionelle Gartengestaltung lassen sich die verschiedenen Bereiche Ihres Gartens optimal mit Wasser versorgen. Eine nachhaltige und kostensparende Anwendung ist garantiert! Gardomat bietet Ihnen eine auf die Bedürfnisse Ihrer Pflanzen ausgerichtete Bewässerungsplanung , damit Ihr Garten auch nach langer Zeit lebendig und einfach schön aussieht.gardoBELEUCHTUNG - Ganz nach Ihren Vorlieben wird ein exklusiver Beleuchtungsplan erstellt. Gardomat berücksichtigt ein umfassendes Repertoire an Leuchten und integriert diese wunschgemäß in Ihre Gartengestaltung. Sie erhalten einen ganz persönlichen Beleuchtungsplan Ihres Gartens mit dessen Hilfe Ihr Garten auch bei Dunkelheit Sicherheit ausstrahlt und in Szene gesetzt wird!gardo3D - Damit Sie eine bessere Vorstellung und ein gutes Raumgefühl für Ihren neuen Garten bekommen, bieten wir Ihnen die Möglichkeit von 3D-Visualisierungen an. Gerade bei einem Grundstück mit Höhenversprüngen lässt sich mit Hilfe der 3D-Ansichten die neue Strukturierung Ihres Gartens besser zeigen und nachvollziehen. Je nach Planungspaket werden bei der 3D-Visualisierung nicht nur die baulichen Elemente sondern auch die raumprägenden Pflanzen wie Gehölze, Sträucher oder Heckenelemente dargestellt.Die Zusatzpläne sind auch im Nachhinein bestellbar. Nachdem Sie sich in den Shop eingeloggt haben, finden Sie diese unter "gardoZUSATZPLÄNE".Vor-Ort-Service möglich (je nach Verfügbarkeit):Für die Unterstützung bei der Bestandsaufnahme bieten wir einen Vor-Ort-Service an. Unsere Gartenbau-Partner kommen auf Wunsch zu Ihnen vor Ort und nehmen Ihren Bestand auf. Auch ein Aufmaß ist möglich, inklusive einer Höhenaufnahme.Hier finden Sie nähere Informationen zum Vor-Ort-Service.Wir sind für Sie da!Bei offenen Fragen und individuellen Planungsanfragen, schreiben Sie und gern: GARDOMAT kontaktierenOder rufen Sie uns direkt an, unter: 0351 - 27 93 932Wir freuen uns auf Ihre Anfrage!
gardoBEMAßUNG

ab 149,00 €*

  • Erstellung Bemaßungsplan
  • Bemaßung aller relevanten Längen
  • Angabe aller Flächengrößen im Bemaßungsplan
  • optional Zusenden separater Bemaßungsplan
Der Bemaßungsplan ist das A und O für die fachgerechte Umsetzung einer Gartenplanung.InhaltsübersichtAngaben aller Längenmaße [Länge, Breite, Radien aller Teilflächen]Angaben aller Flächeninhalte [Größe aller Teilflächen]Darstellung im Bemaßungsplan [im Maßstab 1:100]optional Versand ausgedruckter Planungsunterlagen [im entsprechenden DIN-Format]Möchten Sie Ihre Gartenplanung selbst oder mithilfe einer Gartenbaufirma umsetzen, so benötigen Sie sämtliche Längen- und Flächenangaben für die einzelnen Teilbereiche im Garten. Die gardoBEMAßUNG beinhaltet all diese Zahlen übersichtlich in einem separaten Plan dargestellt. Bei der Genehmigung bzw. Umsetzung Ihrer Gartengestaltung müssen die Maße nicht zeitaufwendig im Plan nachgemessen werden, sondern sind sofort ablesbar. So können Kostenangebote durch eine Gartenbaufirma wesentlich schneller und effektiver erstellt und Zeit auf der Baustelle eingespart werden.Da die gardoBEMAßUNG ein Zusatzplan für eine vorherige Gartengestaltung ist, kann er nur in Verbindung mit den Planungspaketen gardoIDEE+KONZEPT oder gardoKOMPLETT gebucht werden.Die Zusatzpläne sind auch im Nachhinein bestellbar. Nachdem Sie sich in den Shop eingeloggt haben, finden Sie diese unter "gardoZUSATZPLÄNE".Die gesamte Planungsabwicklung erfolgt über das GARDOMAT-Planungsportal. Sämtliche Unterlagen können Sie direkt dort hochladen und kommentieren. Alle Aufgabenschritte finden Sie übersichtlich im Planungsportal wieder. Nach erfolgreicher Bestellung erhalten Sie per Mail Ihren persönlichen Zugangslink.Wir sind für Sie da!Bei offenen Fragen und individuellen Planungsanfragen, schreiben Sie und gern: GARDOMAT kontaktierenOder rufen Sie uns direkt an, unter: 0351 - 27 93 932Wir freuen uns auf Ihre Anfrage!