Zum Hauptinhalt springen Zur Suche springen Zur Hauptnavigation springen

Moderner Garten mit farbigen Kunststoffelementen

Von:
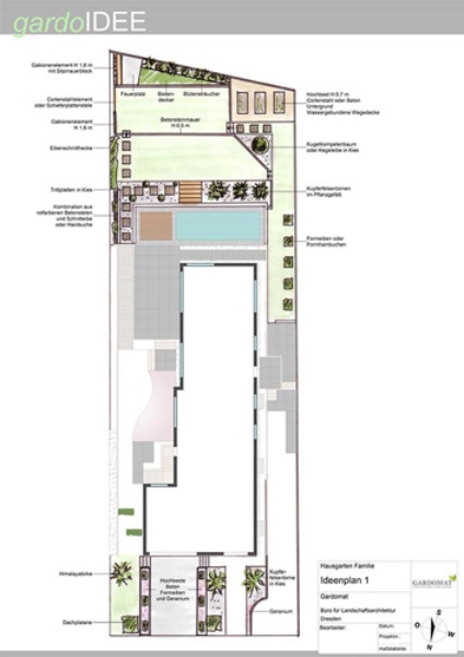
Gegebenheiten

Das zu planende Grundstück hat eine längliche Form. Das im modernen Stil  errichtete Wohnhaus ist ebenfalls sehr lang gestreckt. Dadurch entsteht nur im hinteren Teil die Möglichkeit den Garten zu gestalten. 

Wünsche

Wichtig bei diesem Projekt waren der seitliche Sichtschutz, bei gleichzeitiger Wahrung der Blickachse Richtung eines bestehenden Teiches. Der Sichtschutz sollte modern und möglichst naturnah, mit einheimischen Materialien realisiert werden. Gleichzeitig musste er besonderen statischen Eigenschaften genügen, da er die heranwachsenden Fichten des unmittelbaren Nachbarn verdecken sollte. Die Moderne des Hauses sollte nach außen getragen werden. Wichtig war zudem die Verwendung einheimischer Materialien.

Gartengestaltung

Besonders schwierig stellte sich der Sichtschutz zur bestehenden Fichtenhecke dar. Die Sichtschutzelemente sollte die Wucht der Fichten mindern und eine dementsprechende Höhe aufweisen. Gleichzeitig durfte das Gesamtbild nicht zu erdrückend, sondern vielmehr spannend und abwechslungsreich wirken. Letztendlich wurde sich für eine Kombination aus Cortenstahlelementen in der Höhe des Poolbereiches, farbigen Kunststoffelementen, die die Farbe der Hausverblendungen wieder aufnehmen und abgestuften Gabionelementen entschieden. Die Gabionen haben den Vorteil, dass sie dem statischen Druck der Fichten widerstehen können und mit einheimischen Schotter gefüllt werden können, der bereits im Spritzschutz Anwendung fand.
Zur gegenüberliegenden Seite wurden schmalwachsende Säuleneiben gewählt, welche einen immergrünen und natürlichen Sichtschutz bieten. Für das Sonnenbaden wurde unterhalb des Pools ein kleines Holzdeck angelegt, welches über einen Holzsteg erreichbar ist. Eine Besonderheit stellen die Cortenstahlhochbeete dar, welche das Material aus der gegenüberliegenden Sichtschutzwand wieder aufnehmen. Insgesamt ist ein sehr harmonisches und doch spannungsvolles Gesamtbild entstanden, welches den Eigentümern genügend Intimität und Individualität bietet.

Produktgalerie überspringen

Zugehörige Produkte

Tipp
gardoKOMPLETT

ab 799,00 €*

  • Kundenwunschanalyse
  • zwei handgezeichnete Ideenpläne
  • Detaillierung der Kundenwünsche
  • CAD-Konzeptplan aus zwei Ideenplänen
  • Angabe aller Material- & Produktvorschläge
  • Angabe aller standortspezifischer Pflanzen
  • Gardomat-Planungsbroschüre
gardoKOMPLETT ist das effektive Rundumpaket! Sie erhalten gardoIDEE+KONZEPT, gardoPFLANZEN und gardoMATERIAL in einem Komplettpaket.Inhaltsübersichtinkl. gardoIDEE+KONZEPTKundenwunschanalyse [Kundenwunschformular, Telefongespräch]zwei handgezeichnete Ideenpläne [auf Basis der Kundenwunschanalyse]Detaillierung der Kundenwünsche [Telefongespräch, Auswertung der Ideen]CAD-Konzeptplan aus zwei Ideenplänen [im Maßstab 1:100]optional Versand ausgedruckter Planungsunterlagen [im entsprechenden DIN-Format]inkl. gardoMATERIALAngabe aller Material- & Produktvorschläge: Belagsflächen, Mauern, Zäune etc.Gardomat-Planungbroschüre: detaillierte Materialbeschreibung in Bild und Textinkl. gardoPFLANZENAngabe aller standortspezifischer Pflanzen: Bäume, Sträucher, Gräser, Bodendecker... [exkl. Stauden]Gardomat-Planungbroschüre: Pflanzennamen in Deutsch & Botanisch, Blütezeiten, Mengen im PlangardoKOMPLETT umfasst zunächst zwei unterschiedliche, auf Ihre Bedürfnisse abgestimmte Ideenpläne [gardoIDEE]. Diese handgezeichneten Pläne zeigen die mögliche Strukturierung Ihres Gartens und die verschiedenen Gartengestaltungselemente in unterschiedlicher Kombination und Proportion. Aus diesen Plänen werden die jeweils besten Gestaltungsvorschläge gefiltert und in einem CAD-Konzeptplan festgehalten. Dieser Plan entspricht daher nahezu 100 % Ihren Vorstellungen.Das Beste bei gardoKOMPLETT: gardoPFLANZEN und gardoMATERIAL sind mit inbegriffen. In der dazugehörigen GARDOMAT-Planungsbroschüre sind daher sämtliche Pflanzen- und Materialangaben mit anschaulichen Bildern und spezifischen Beschreibungen aufgeführt.Wir weisen ausdrücklich darauf hin, dass die Planung vorbehaltlich einer Bauvoranfrage bzw. Baugenehmigung erstellt wird. Die Abstimmungspflicht liegt beim Bauherren.Folgende Unterlagen benötigen wir von Ihnen:ausgefülltes Kundenwunschformular [Erhalt nach Bestellung per Mail]aussagekräftige Fotos des Grundstücksmaßstabsgerechter Grundriss- bzw. Lageplanggf. weitere relevante Grundlagenpläne [Höhenplan, Bebauungsplan etc.]Die gesamte Planungsabwicklung erfolgt über das GARDOMAT-Planungsportal. Sämtliche Unterlagen können Sie direkt dort hochladen und kommentieren. Alle Aufgabenschritte finden Sie übersichtlich im Planungsportal wieder. Nach erfolgreicher Bestellung erhalten Sie per Mail Ihren persönlichen Zugangslink.Folgende Zusatzpläne werden empfohlen:gardoBEMAßUNG - Der Bemaßungsplan ist das A und O für eine später ggf. notwendige Detaillierung der Planung vor Ort durch einen ausführenden Fachbetrieb. Die Maße müssen nicht zeitaufwendig im Plan nachgemessen werden, sondern sind sofort ablesbar. Er beinhaltet sämtliche planbezogene Längen- und Flächenangaben (keine Mengenangaben). Damit ist eine weitere wichtige Grundlage für die Detaillierung der Planung sowie Genehmigung vor Ort und für die Preiskalkulation Ihres Gartens geschaffen.gardoBEWÄSSERUNG - Durch eine professionelle Gartengestaltung lassen sich die verschiedenen Bereiche Ihres Gartens optimal mit Wasser versorgen. Eine nachhaltige und kostensparende Anwendung ist garantiert! Gardomat bietet Ihnen eine auf die Bedürfnisse Ihrer Pflanzen ausgerichtete Bewässerungsplanung , damit Ihr Garten auch nach langer Zeit lebendig und einfach schön aussieht.gardoBELEUCHTUNG - Ganz nach Ihren Vorlieben wird ein exklusiver Beleuchtungsplan erstellt. Gardomat berücksichtigt ein umfassendes Repertoire an Leuchten und integriert diese wunschgemäß in Ihre Gartengestaltung. Sie erhalten einen ganz persönlichen Beleuchtungsplan Ihres Gartens mit dessen Hilfe Ihr Garten auch bei Dunkelheit Sicherheit ausstrahlt und in Szene gesetzt wird!gardo3D - Damit Sie eine bessere Vorstellung und ein gutes Raumgefühl für Ihren neuen Garten bekommen, bieten wir Ihnen die Möglichkeit von 3D-Visualisierungen an. Gerade bei einem Grundstück mit Höhenversprüngen lässt sich mit Hilfe der 3D-Ansichten die neue Strukturierung Ihres Gartens besser zeigen und nachvollziehen. Je nach Planungspaket werden bei der 3D-Visualisierung nicht nur die baulichen Elemente sondern auch die raumprägenden Pflanzen wie Gehölze, Sträucher oder Heckenelemente dargestellt.Die Zusatzpläne sind auch im Nachhinein bestellbar. Nachdem Sie sich in den Shop eingeloggt haben, finden Sie diese unter "gardoZUSATZPLÄNE".Vor-Ort-Service möglich (je nach Verfügbarkeit):Für die Unterstützung bei der Bestandsaufnahme bieten wir einen Vor-Ort-Service an. Unsere Gartenbau-Partner kommen auf Wunsch zu Ihnen vor Ort und nehmen Ihren Bestand auf. Auch ein Aufmaß ist möglich, inklusive einer Höhenaufnahme.Hier finden Sie nähere Informationen zum Vor-Ort-Service.Wir sind für Sie da!Bei offenen Fragen und individuellen Planungsanfragen, schreiben Sie und gern: GARDOMAT kontaktierenOder rufen Sie uns direkt an, unter: 0351 - 27 93 932Wir freuen uns auf Ihre Anfrage!
gardoBEMAßUNG

ab 149,00 €*

  • Erstellung Bemaßungsplan
  • Bemaßung aller relevanten Längen
  • Angabe aller Flächengrößen im Bemaßungsplan
  • optional Zusenden separater Bemaßungsplan
Der Bemaßungsplan ist das A und O für die fachgerechte Umsetzung einer Gartenplanung.InhaltsübersichtAngaben aller Längenmaße [Länge, Breite, Radien aller Teilflächen]Angaben aller Flächeninhalte [Größe aller Teilflächen]Darstellung im Bemaßungsplan [im Maßstab 1:100]optional Versand ausgedruckter Planungsunterlagen [im entsprechenden DIN-Format]Möchten Sie Ihre Gartenplanung selbst oder mithilfe einer Gartenbaufirma umsetzen, so benötigen Sie sämtliche Längen- und Flächenangaben für die einzelnen Teilbereiche im Garten. Die gardoBEMAßUNG beinhaltet all diese Zahlen übersichtlich in einem separaten Plan dargestellt. Bei der Genehmigung bzw. Umsetzung Ihrer Gartengestaltung müssen die Maße nicht zeitaufwendig im Plan nachgemessen werden, sondern sind sofort ablesbar. So können Kostenangebote durch eine Gartenbaufirma wesentlich schneller und effektiver erstellt und Zeit auf der Baustelle eingespart werden.Da die gardoBEMAßUNG ein Zusatzplan für eine vorherige Gartengestaltung ist, kann er nur in Verbindung mit den Planungspaketen gardoIDEE+KONZEPT oder gardoKOMPLETT gebucht werden.Die Zusatzpläne sind auch im Nachhinein bestellbar. Nachdem Sie sich in den Shop eingeloggt haben, finden Sie diese unter "gardoZUSATZPLÄNE".Die gesamte Planungsabwicklung erfolgt über das GARDOMAT-Planungsportal. Sämtliche Unterlagen können Sie direkt dort hochladen und kommentieren. Alle Aufgabenschritte finden Sie übersichtlich im Planungsportal wieder. Nach erfolgreicher Bestellung erhalten Sie per Mail Ihren persönlichen Zugangslink.Wir sind für Sie da!Bei offenen Fragen und individuellen Planungsanfragen, schreiben Sie und gern: GARDOMAT kontaktierenOder rufen Sie uns direkt an, unter: 0351 - 27 93 932Wir freuen uns auf Ihre Anfrage!