Zum Hauptinhalt springen Zur Suche springen Zur Hauptnavigation springen

Vorgarten mit moderner Gestaltung

Von:

Gegebenheiten

Der Vorgarten dieses Grundstückes hat eine Größe von 150 m². Er beinhaltet die befestigte Fläche vor der Garage, einen weiteren Stellplatz auf dem Grundstück, sowie den Bereich vor der Eingangstür und den Anschluss vom Vorgarten zum eigentlichen Garten im privateren Bereich.

Wünsche

Die Gartenbesitzer wünschen sich eine moderne Gestaltung, welche zum eleganten Stil des Hauses passt.  

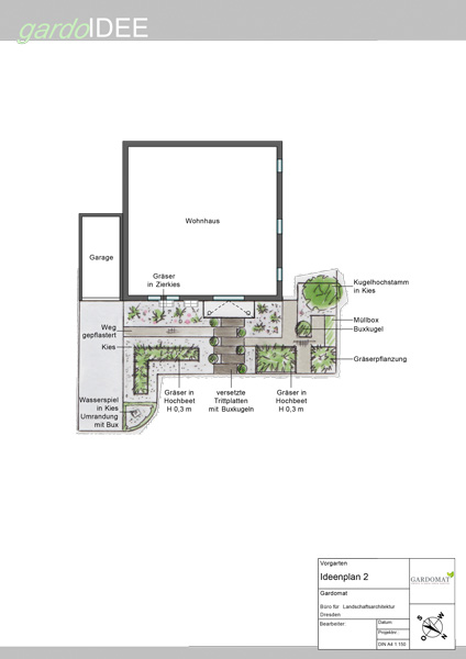
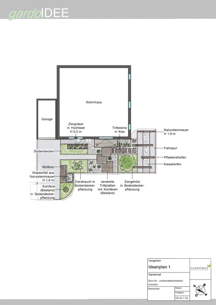
Gartengestaltung 

Der Bereich vor der Garage, der Weg von der Garage und der zusätzliche Stellplatz werden mit Pflaster befestigt. Der weitere Stellplatz wird noch einmal durch einen Rasenstreifen unterteilt. Am Ende des Stellplatzes befindet sich der Müllplatz. Hier wurde eine Konstruktion mit Dachbegrünung zur Verschönerungen des Bereiches vorgeschlagen. Mit Hilfe von Eibenhecken wird eine natürliche Abgrenzung und kleine Räume im Bereich vor der Eingangstür geschaffen. Über Platten in Kies erreicht man den Eingang. An der Grundstücksgrenze wird der Eingang durch zwei Säulen eingerahmt. Versetzt gepflanzte Buchskugeln ergeben ein harmonischen Gesamtbild. In der südöstlichen Ecke wurde durch eine Wasserstelle in Kies mit Buchsheckenumrandung ein Highlight gesetzt. Der Weg von der Garage zum Eingang wird mithilfe von ausgewählten Sträuchern in Bodendeckern und einem Hochbeet aus Beton oder Stahl begrünt und somit aufgelockert.

Produktgalerie überspringen

Zugehörige Produkte

Tipp
gardoKOMPLETT

ab 799,00 €*

  • Kundenwunschanalyse
  • zwei handgezeichnete Ideenpläne
  • Detaillierung der Kundenwünsche
  • CAD-Konzeptplan aus zwei Ideenplänen
  • Angabe aller Material- & Produktvorschläge
  • Angabe aller standortspezifischer Pflanzen
  • Gardomat-Planungsbroschüre
gardoKOMPLETT ist das effektive Rundumpaket! Sie erhalten gardoIDEE+KONZEPT, gardoPFLANZEN und gardoMATERIAL in einem Komplettpaket.Inhaltsübersichtinkl. gardoIDEE+KONZEPTKundenwunschanalyse [Kundenwunschformular, Telefongespräch]zwei handgezeichnete Ideenpläne [auf Basis der Kundenwunschanalyse]Detaillierung der Kundenwünsche [Telefongespräch, Auswertung der Ideen]CAD-Konzeptplan aus zwei Ideenplänen [im Maßstab 1:100]optional Versand ausgedruckter Planungsunterlagen [im entsprechenden DIN-Format]inkl. gardoMATERIALAngabe aller Material- & Produktvorschläge: Belagsflächen, Mauern, Zäune etc.Gardomat-Planungbroschüre: detaillierte Materialbeschreibung in Bild und Textinkl. gardoPFLANZENAngabe aller standortspezifischer Pflanzen: Bäume, Sträucher, Gräser, Bodendecker... [exkl. Stauden]Gardomat-Planungbroschüre: Pflanzennamen in Deutsch & Botanisch, Blütezeiten, Mengen im PlangardoKOMPLETT umfasst zunächst zwei unterschiedliche, auf Ihre Bedürfnisse abgestimmte Ideenpläne [gardoIDEE]. Diese handgezeichneten Pläne zeigen die mögliche Strukturierung Ihres Gartens und die verschiedenen Gartengestaltungselemente in unterschiedlicher Kombination und Proportion. Aus diesen Plänen werden die jeweils besten Gestaltungsvorschläge gefiltert und in einem CAD-Konzeptplan festgehalten. Dieser Plan entspricht daher nahezu 100 % Ihren Vorstellungen.Das Beste bei gardoKOMPLETT: gardoPFLANZEN und gardoMATERIAL sind mit inbegriffen. In der dazugehörigen GARDOMAT-Planungsbroschüre sind daher sämtliche Pflanzen- und Materialangaben mit anschaulichen Bildern und spezifischen Beschreibungen aufgeführt.Wir weisen ausdrücklich darauf hin, dass die Planung vorbehaltlich einer Bauvoranfrage bzw. Baugenehmigung erstellt wird. Die Abstimmungspflicht liegt beim Bauherren.Folgende Unterlagen benötigen wir von Ihnen:ausgefülltes Kundenwunschformular [Erhalt nach Bestellung per Mail]aussagekräftige Fotos des Grundstücksmaßstabsgerechter Grundriss- bzw. Lageplanggf. weitere relevante Grundlagenpläne [Höhenplan, Bebauungsplan etc.]Die gesamte Planungsabwicklung erfolgt über das GARDOMAT-Planungsportal. Sämtliche Unterlagen können Sie direkt dort hochladen und kommentieren. Alle Aufgabenschritte finden Sie übersichtlich im Planungsportal wieder. Nach erfolgreicher Bestellung erhalten Sie per Mail Ihren persönlichen Zugangslink.Folgende Zusatzpläne werden empfohlen:gardoBEMAßUNG - Der Bemaßungsplan ist das A und O für eine später ggf. notwendige Detaillierung der Planung vor Ort durch einen ausführenden Fachbetrieb. Die Maße müssen nicht zeitaufwendig im Plan nachgemessen werden, sondern sind sofort ablesbar. Er beinhaltet sämtliche planbezogene Längen- und Flächenangaben (keine Mengenangaben). Damit ist eine weitere wichtige Grundlage für die Detaillierung der Planung sowie Genehmigung vor Ort und für die Preiskalkulation Ihres Gartens geschaffen.gardoBEWÄSSERUNG - Durch eine professionelle Gartengestaltung lassen sich die verschiedenen Bereiche Ihres Gartens optimal mit Wasser versorgen. Eine nachhaltige und kostensparende Anwendung ist garantiert! Gardomat bietet Ihnen eine auf die Bedürfnisse Ihrer Pflanzen ausgerichtete Bewässerungsplanung , damit Ihr Garten auch nach langer Zeit lebendig und einfach schön aussieht.gardoBELEUCHTUNG - Ganz nach Ihren Vorlieben wird ein exklusiver Beleuchtungsplan erstellt. Gardomat berücksichtigt ein umfassendes Repertoire an Leuchten und integriert diese wunschgemäß in Ihre Gartengestaltung. Sie erhalten einen ganz persönlichen Beleuchtungsplan Ihres Gartens mit dessen Hilfe Ihr Garten auch bei Dunkelheit Sicherheit ausstrahlt und in Szene gesetzt wird!gardo3D - Damit Sie eine bessere Vorstellung und ein gutes Raumgefühl für Ihren neuen Garten bekommen, bieten wir Ihnen die Möglichkeit von 3D-Visualisierungen an. Gerade bei einem Grundstück mit Höhenversprüngen lässt sich mit Hilfe der 3D-Ansichten die neue Strukturierung Ihres Gartens besser zeigen und nachvollziehen. Je nach Planungspaket werden bei der 3D-Visualisierung nicht nur die baulichen Elemente sondern auch die raumprägenden Pflanzen wie Gehölze, Sträucher oder Heckenelemente dargestellt.Die Zusatzpläne sind auch im Nachhinein bestellbar. Nachdem Sie sich in den Shop eingeloggt haben, finden Sie diese unter "gardoZUSATZPLÄNE".Vor-Ort-Service möglich (je nach Verfügbarkeit):Für die Unterstützung bei der Bestandsaufnahme bieten wir einen Vor-Ort-Service an. Unsere Gartenbau-Partner kommen auf Wunsch zu Ihnen vor Ort und nehmen Ihren Bestand auf. Auch ein Aufmaß ist möglich, inklusive einer Höhenaufnahme.Hier finden Sie nähere Informationen zum Vor-Ort-Service.Wir sind für Sie da!Bei offenen Fragen und individuellen Planungsanfragen, schreiben Sie und gern: GARDOMAT kontaktierenOder rufen Sie uns direkt an, unter: 0351 - 27 93 932Wir freuen uns auf Ihre Anfrage!